Ballards Way, Croydon - For Sale £675,000




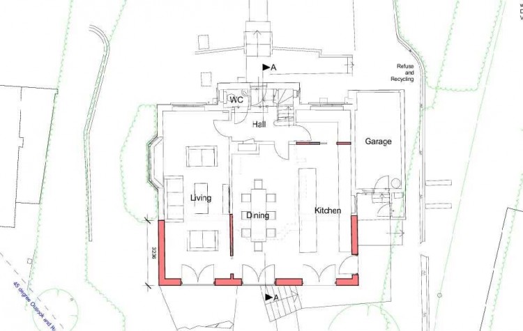
NO CHAIN! A particularly attractive period home occupying a substantial plot and already having planning permission to add value by creating a two-storey extension to the rear. Further potential to extend could be granted subject to planning permission. The property oozes period charm with original fireplaces, one of which includes an original style wood burning stove and is flooded with light from leaded light windows. Modernisation is required throughout but the main structure of the house would appear to be sound although potential buyers would of course need to carry out their own survey. In brief the accommodation comprises an entrance hall with ground floor cloakroom, a fantastic sitting room with triple aspect looking out to the rear, side and front, a dining room and a large kitchen ( there is no sink connected but we are told by the vendor that this could be reinstated to make the property mortgageable). Upstairs are three double bedrooms, the largest having a dressing room off of it, a bathroom and a separate WC. There is a garage to the side and off street parking in front. The rear garden extends to approx 2500 square feet (please see title plan within the photos) with mature trees and shrubs.

Royal Russell school is a short walk away as is the Coombe Lane tram stop providing quick links to East Croydon station. VIEWINGS AVAILABLE IMMEDIATELY. Council Tax Band F. EPC Rating E.



  • Planning Granted for Extension
  • NO CHAIN!
  • Period Features
  • Extensive Plot
  • Garage
  • Off Street Parking
  • Refurbishment required
Floorplan for Ballards Way, Croydon
EPC Graph for Ballards Way, Croydon

The Association of Residential Letting Agents The Property Ombudsman Trading Standards Approved Code