Rolleston Road, South Croydon - Let Agreed £1,700 PCM, Fees Apply




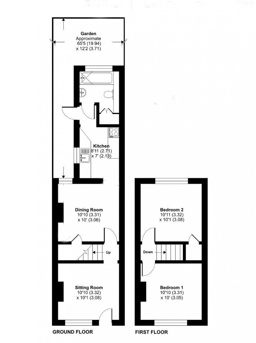
NEWLY REFURBISHED AND AVAILABLE NOW FOR A LONG TERM LET!! Be the first to live in this house since it has been newly refurbished and newly decorated, with a brand new kitchen, bathroom, boiler, carpets and electrics! With an EPC rating of C, this immaculate house is located close to both Sanderstead and Purley Oaks stations providing excellent links to London Bridge and Victoria. Also nearby are the bus routes of Brighton Road in the direction of Croydon Town Centre, East Croydon station and in the other direction Purley. The accommodation briefly comprises two reception rooms, kitchen, ground floor bathroom with two double bedrooms upstairs. Parking available on street with no permits required. LONG TERM TENANTS PREFERRED. Council Tax Band C.

Lettings Information
Holding Deposit ( per tenancy)
One week's rent. This is to reserve a property. Please Note: This will be withheld if any
relevant person (including any guarantor(s)) withdraw from the tenancy, fail a Rightto-Rent check, provide materially significant false or misleading information, or fail to
sign their tenancy agreement (and / or Deed of Guarantee) within 15 calendar days (or
other Deadline for Agreement as mutually agreed in writing).

Security Deposit (per tenancy. Rent under £50,000 per year)
Five weeks' rent.
This covers damages or defaults on the part of the tenant during the tenancy.

Security Deposit (per tenancy. Rent of £50,000 or over per year
Six weeks' rent.
This covers damages or defaults on the part of the tenant during the tenancy.

Unpaid Rent
Interest at 3% above the Bank of England Base Rate from Rent Due Date until paid in
order to pursue non-payment of rent. Please Note: This will not be levied until the rent
is more than 14 days in arrears.


Lost Key(s) or other Security Devices
Tenants are liable to the actual cost of replacing any lost key(s) or other security
device(s). If the loss results in locks needing to be changed, the actual costs of a
locksmith, new lock and replacement keys for the tenant, landlord any other persons
requiring keys will be charged to the tenant. If extra costs are incurred there will be
a charge of £15 per hour (inc. VAT) for the time taken replacing lost key(s) or other
security device(s).

Variation of Contract ( Tenant's Request)
£50 (inc. VAT) per agreed variation. To cover the costs associated with taking landlord's
instructions as well as the preparation and execution of new legal documents.

Change of Sharer ( Tenant's Request)
£50 (inc. VAT) per replacement tenant or any reasonable costs incurred if higher.
To cover the costs associated with taking landlord's instructions, new tenant
referencing and Right-to-Rent checks, deposit registration as well as the pre

  • JUST REFURBISHED1
  • TWO DOUBLE BEDROOMS
  • Close to Sanderstead & Purley Oaks stations
  • EPC Rating of C
  • Double Glazing
  • Gas Central Heating
  • AVAILABLE NOW!!
Floorplan for Rolleston Road, South Croydon
EPC Graph for Rolleston Road, South Croydon

The Association of Residential Letting Agents The Property Ombudsman Trading Standards Approved Code